Каркасный дом 6х8 с верандой 2.5х8, Горный Щит
Описание дома
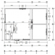
Дом 6 х 8 м, каркасный. Веранда 2,5 х 8 м.
Фундамент на винтовых сваях.
Высота монтажа от верхней точки уровня свайного поля 500мм.
Отсыпки свай, цпс нет.
Обвязка фундамента 150х200 из строенных досок 50 х 200 мм.
Черновой пол.
Из доски 25х150мм. Сплошным настилом в районе дома.
По веранде только по периметру обвязки.
Каркас пола.
Из доски 50х200 мм.
Утепление пола в доме KNAUF INSULATION Aquastatik TS 037 200мм.
Настил - плита типа ОСП-3, шлифованная
На веранде на каркас пола половая доска. Без покрытия
Стены.
Стойки шагом 580 мм. 150мм. толщиной.
С улицы по каркасу ветрозащита Изоспан А, Б. Обшивка - имитация бруса, монтаж в горизонт.
Утеплитель KNAUF INSULATION Aquastatik TS 037 100 мм + 50мм. в перехлёст слоёв.
Перегородки 100мм.
Внутри обшивка - вагонка "Штиль" сосна, сорт АВ
Кровля.
Профлист С21. Цвет шоколад.
Подшив потолка дома доской 25х100 мм.
Подшив потолка веранды доской 25х100 мм.
Утепление потолка 100 мм.
Обшивка потолка веранды - вагонка "Штиль" сосна, сорт А
Окна.
Рехао. Цвет графит снаружи.
3х камерный профиль. 2х камерный стеклопакет.
Подоконник 200 мм.
Обналичка окон плоской рейкой с внутренней стороны.
Обналичка с улицы имитацией бруса.
Двери.
Входная дверь сейф. С терморазрывом. 900х2000 полотно.
Межкомнатные - филенчатые.



